
1/3


£90K
0.055 acres
£90K
Apple Tree Close
0.055 acres
Plot with permission for sale North Wingfield, S42 5HR
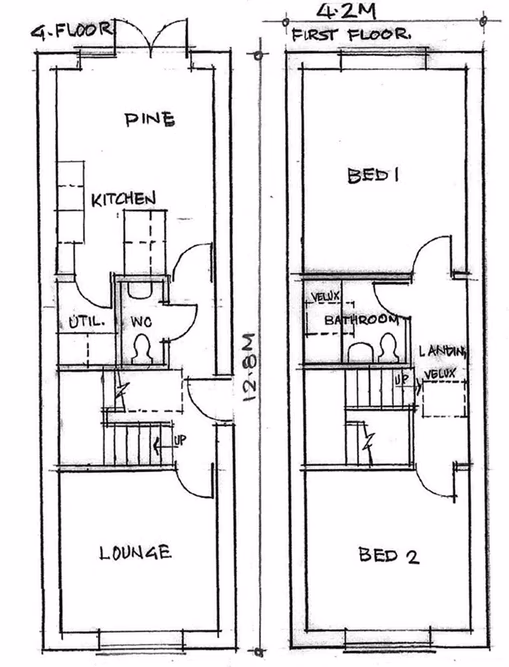
Building plot approx 226 sqm. Apple Tree Close, North Wingfield. With planning consent for 2 bed detached property. Ground floor living dining kitchen and utility, first floor two bedrooms and bathroom, parking space and garden.
Plot with permission for sale North Wingfield, S42 5HR
0.055 acres
development
available
freehold
Description
Building plot approx 226 sqm. Apple Tree Close, North Wingfield. With planning consent for 2 bed detached property. Ground floor living dining kitchen and utility, first floor two bedrooms and bathroom, parking space and garden.
Contact Agent
Sally Botham Estates, Matlock
Smart Picks — Professionals Relevant to This Land
Based on this property's key features, here are the specialists you may want to consult as part of your due diligence: land agents and planning consultants.
Location
Apple Tree Close

